



Fristående Uterum LandskapStråla 17,5 kvm
114 095 kr
30 dagars prisgaranti
- Tillfälligt slut
- Hemleverans
- Fraktkostnad beräknas i varukorgen.

Uterum Stråla är en serie med smarta fristående uterum som där väggarna byggs med kraftiga timrade brädor (44mm tjocka och 114mm breda). Detta ger et modernt och snyggt utseende, dessutom blir både in och utsida klar samtidigt. Denna princip för monteringen enkel, och rummet blir snabbt redo att användas.
Varumärke
Beskrivning
Uterum Stråla är en serie med smarta fristående uterum som där väggarna byggs med kraftiga timrade brädor (44mm tjocka och 114mm breda). Detta ger et modernt och snyggt utseende, dessutom blir både in och utsida klar samtidigt. Denna princip för monteringen enkel, och rummet blir snabbt redo att användas.
Tillsammans med grå skjutpartier får man en produkt som passar in i de flesta trädgårdar. Taket är av brädor och täcks med takpapp (tillval). Hörnen är försedda med en plåtprofil i samma kulör som skjutpartierna för att skapa ett vind och regntätt hörn där väggarna möts. Även golv av brädor med regelverk ingår i denna serie.
Samtliga glas är isolerglas (4mm härdat glas och 6mm luftspalt) är säkerhetshärdade och de skjutbara partierna har låsning med nyckel.
Stråla finns även med ett extra utskjutande
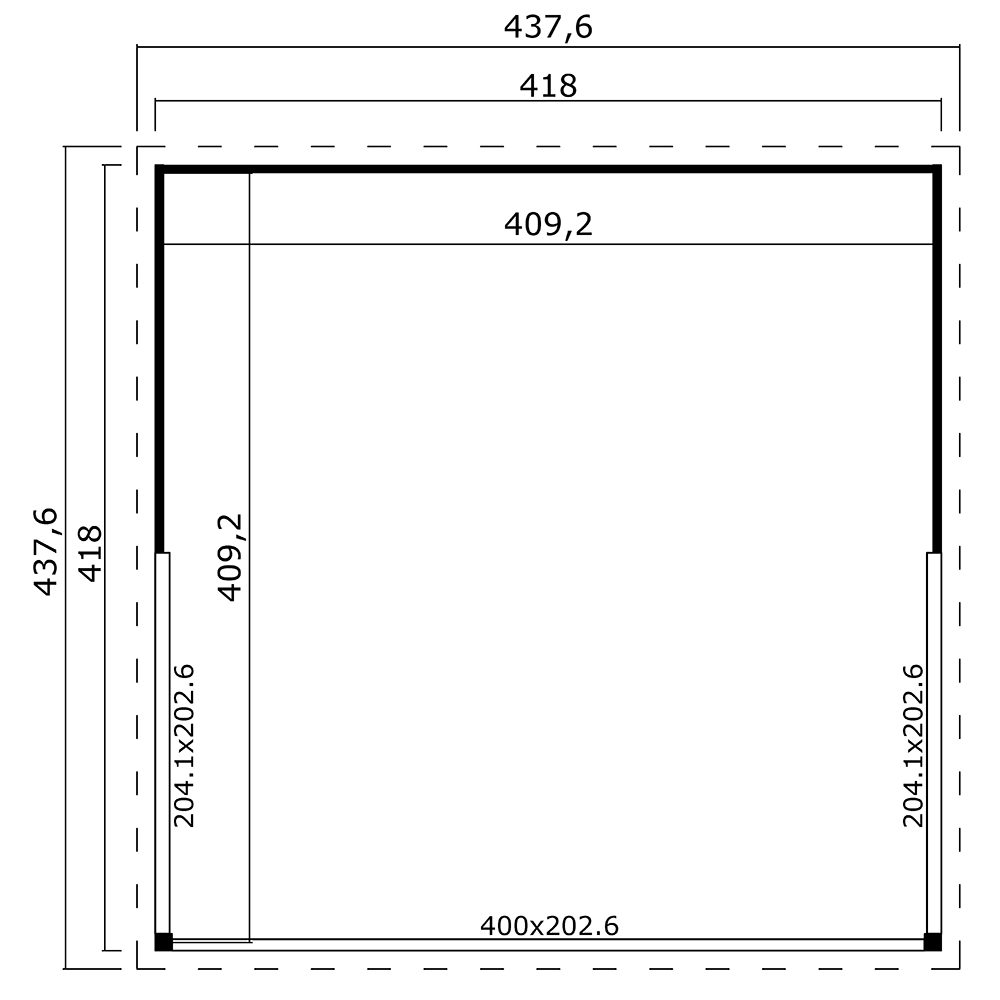
Dimensioner:
- Väggar av 44mm träbrädor. Hörnstolpar 90x90mm
- Tak 15x90mm träbrädor (köp till takbeläggning). Takvinkel 2gr. Takbalkar 70x140mm
- Golv 15x90mm träbrädor. Golvbalkar 45x70mm
- Skjutdörrar:
- 1st 4000x2026 (14mm isolergas u-värde 3,0. Kulör RAL 7016)
- 1st 2041x2026 (14mm isolergas u-värde 3,0. Kulör RAL 7016)
Samtliga glas är isolerglas (4mm härdat glas och 6mm luftspalt) är säkerhetshärdade och de skjutbara partierna har låsning med nyckel.
Stråla finns även med ett extra utskjutande
Dimensioner:
- Väggar av 44mm träbrädor. Hörnstolpar 90x90mm
- Tak 15x90mm träbrädor (köp till takbeläggning). Takvinkel 2gr. Takbalkar 70x140mm
- Golv 15x90mm träbrädor. Golvbalkar 45x70mm
- Skjutdörrar:
- 1st 4000x2026 (14mm isolergas u-värde 3,0. Kulör RAL 7016)
- 1st 2041x2026 (14mm isolergas u-värde 3,0. Kulör RAL 7016)
Dokument
Egenskaper
| Varumärke | Landskap |
|---|---|
| Art.Nr. | 601273743 |
| Säsong | Vår, höst |
| Bredd | 4180 mm |
| Djup | 4180 mm |
| Modell | Pulpettak |
| Area | 17,5 m² |
| Höjd | 2400 mm |
| Produkttyp | Fristående uterum |
| Glas | 2-glas |
| Glastyp | Härdat isolerglas |
| Profil | Aluminium |
| Serie | Stråla |
| Takdesign | ROUND(DG6,1) |
| Snözon | 1,5 |
