Beskrivning
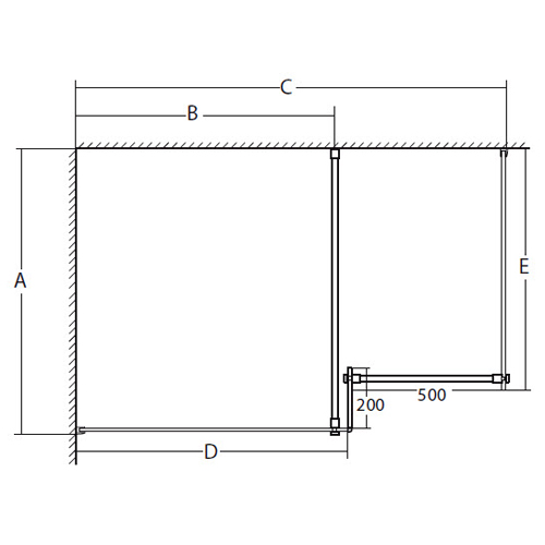
Walk in shower - en typ av duschlösning utan dörr. Bara att gå in och ut, här skärmar i stället en av glasväggarna av duschytan.
En liten men viktig detalj
Ett riktigt bra badrum ska ge känslan av kvalitet och trygghet. Hafas produkter är tillverkade av material och ingående komponenter av högsta kvalitet, därför ger Hafa dig alltid 5 års garanti på alla sina badrumsprodukter. Läs mer
Dokument
Egenskaper
| Varumärke | Hafa |
|---|---|
| Art.Nr. | 1470825 |
| Profil | Matt aluminium |
| Storlek | 800x800 mm |
| Glastyp | Klarglas |
| Utförande | 88 |
| Höjd | 2000 mm |
| Serie | Cristal |
| Färg | Silver |
| Placering | Hörn |
| Vikt | 84 kg |
| Justerbar | -1200 mm |
| Material | Härdat säkerhetsglas |
| Form | Rak |
| Produkttyp | Duschhörn |
| Glastjocklek | 8 mm |
| EAN-nr | 7330027031484 |




